Maisons individuelles Chartres

Inter Promotion, immobilier Chartres

Créer votre projet immobilier

Liste des N° de teléphone des agences

Maison individuelle ATOL


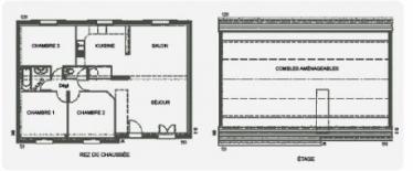
Une architecture bien équilibrée avec un ”Brin de Fantaisie” de part le décroché de la toiture.

Un espace de vie de plain-pied avec possibilité d'aménager les combles.


SURFACE :
73 m²

PRIX A PARTIR DE :
88 183 €


   
 

  Accueil | Plan du site | Mentions légales